After learning of a Lottery Grants Board grant of $150,000 grant, the Raglan Community Arts Council says it has enough money to start the Creative Space project after Easter 2018.

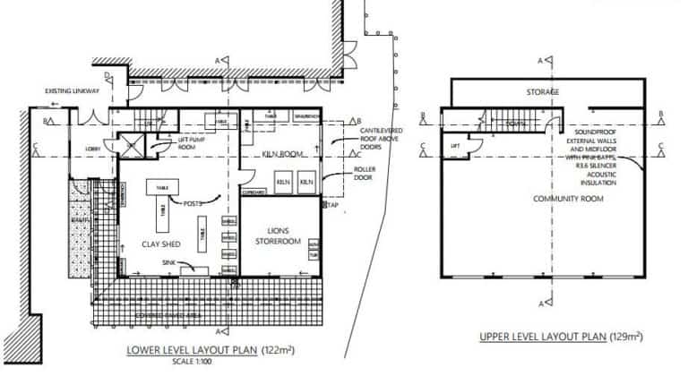
The new Creative Space building will provide additional capacity to meet the Raglan community’s needs. It will replace the old Clay Shed and Lions Club Shed and create an additional multi-functional space. The upstairs room of about 100 square metres, about double the size of our theatre room, will cater for meetings, drama, theatre, music, and physical art forms like ballet and tai chi. The ground level will house the clay shed with separate kiln room and a sorting and storage space for the Op Shop run by the Raglan Lions Club.
Rodger Gallagher, Chair of the Raglan Community Arts Council says, “The cost of our project is $488,000. Thanks to a lot of hard work by volunteers, amazing support from our Raglan Whaingaroa community and donations from several community funders (Raglan Community Board, Raglan Lions Club, Waikato Wellbeing Trust, Logan Campbell Estate, WEL Energy Trust, Trust Waikato and the St Lazarus Trust), with this latest grant we now have $375,000 towards the project. The RCAC’s management and project committees that although there is still a large gap to fully complete the project, there are sufficient funds get started in April next year.”
He added, “In parallel with fund raising, since 2015 we’ve been working with the Waikato District Council’s regulatory and other approval processes. We hope to have the final stamp of approval from the council in early 2018. We will be continuing with fund raising activities while construction is underway so we have enough money to complete the project. With this, along with the love and support of the community coupled with a frugal approach to construction we are confident we can do it. Raglan Community Arts Council thanks everybody who has helped get us to this stage with this much needed facility.”
The Lottery Grants Board Community Facilities Committee said they had requests totalling close to $27 million and had applications for just under $8 million. So they were only able to approve 30% of the grant applications. In approving the $150,000 grant the Board said that the Raglan community had clearly expressed its need and support of the new building.

